
Accede a Recursos Gratuitos para Diseño de Estacionamientos en Ángulo y Mejora la Eficiencia de tus Proyectos

Dibujo CAD para Alcance Manual desde Silla de Ruedas

Descargar bloque CAD acceso lavabo vista lateral

Bloques CAD de accesibilidad siluetas de personas

Descargar bloque CAD radio de giro 150cm DWG

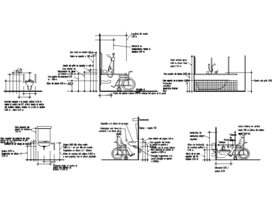
Descarga gratis bloques AutoCAD baños discapacitados DWG precisos

Bloques DWG de Aparcamiento Oblícuo Exterior Múltiple para Vehículos en AutoCAD 2D Gratis
Descargar Bloques DWG de Plazas de Aparcamiento en Ángulo 45º en AutoCAD 2D Gratis
Si estás trabajando en el diseño de un estacionamiento, es crucial tener acceso a bloques DWG de plazas de aparcamiento que se ajusten a tus necesidades. Hoy te traemos la oportunidad de descargar gratis bloques de plazas en ángulo 45º en AutoCAD 2D. Este recurso es invaluable para arquitectos, diseñadores y urbanistas que buscan optimizar sus proyectos de estacionamiento.
Ventajas de Usar Plazas de Aparcamiento en Ángulo
- Aprovechamiento del Espacio: Las plazas en ángulo permiten maximizar el número de vehículos que pueden estacionarse en un área determinada, lo que es ideal para espacios reducidos.
- Facilidad de Maniobra: Este tipo de diseño facilita la entrada y salida de los vehículos, reduciendo el riesgo de accidentes y mejorando la experiencia del usuario.
- Versatilidad: Los bloques DWG que ofrecemos son adecuados para diferentes tipos de proyectos, ya sean residenciales, comerciales o públicos.
Cómo Utilizar los Bloques DWG
La descarga y uso de bloques DWG es muy sencilla. Solo necesitas seguir estos pasos:
- Descarga: Haz clic en el enlace de descarga y guarda el archivo en tu computadora.
- Importa en AutoCAD: Abre AutoCAD y utiliza la opción de «Insertar» para añadir los bloques a tu diseño.
- Ajusta y Personaliza: Modifica las dimensiones y la ubicación de los bloques según las necesidades específicas de tu proyecto.
Diseño Inclusivo y Accesible
Es importante mencionar que al diseñar plazas de aparcamiento, debes considerar la inclusión de espacios accesibles para personas con movilidad reducida. Utilizar bloques CAD de estacionamiento que cumplan con las normativas de accesibilidad garantiza que todos puedan utilizar el espacio de manera segura. Por lo tanto, asegúrate de complementar tus diseños con bloques CAD para minusválidos, creando un entorno que sea accesible para todos.
Conclusión
Descargar bloques DWG de plazas de aparcamiento en ángulo 45º es una excelente manera de mejorar tus proyectos de diseño. Con estos recursos, podrás optimizar el espacio y asegurar que tu estacionamiento sea funcional y eficiente. No olvides considerar la inclusión de espacios accesibles para garantizar un diseño inclusivo. Empieza hoy mismo a utilizar estos bloques y lleva tus proyectos al siguiente nivel.