
Descarga Gratis Bloques DWG de Maquinaria Caterpillar: Pala Cargadora en Vista Lateral o Alzado para AutoCAD 2D
Si necesitas incorporar una pala cargadora Caterpillar en tus proyectos de diseño en AutoCAD 2D, aquí te ofrecemos la opción de descargar bloques DWG de manera gratuita. Estos bloques incluyen la vista lateral o en alzado de la pala cargadora, ideal para cualquier proyecto de maquinaria industrial o de construcción.
Nuestros bloques DWG están diseñados con precisión, proporcionando todos los detalles necesarios de la pala cargadora Caterpillar en formato 2D. Estos bloques son perfectos para arquitectos, ingenieros y diseñadores que requieren bloques DWG de maquinaria industrial para sus planos técnicos en AutoCAD.
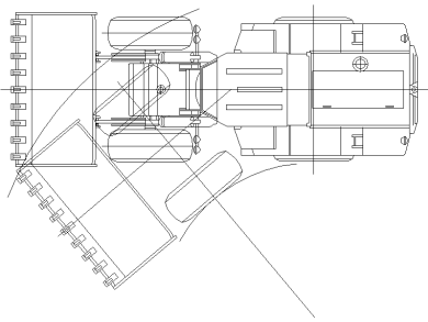
Pala Cargadora Caterpillar en Vista Lateral o Alzado
La vista lateral o en alzado es fundamental para representar la pala cargadora con exactitud en proyectos industriales. Este bloque muestra detalles técnicos como las dimensiones y la estructura de la pala cargadora Caterpillar, permitiendo una integración sencilla en los planos. Si estás buscando un bloque autocad maquinaria industrial, este archivo DWG es ideal.
Al descargar este bloque, tendrás acceso a un diseño completo de la pala cargadora en una representación 2D clara, lo que te ayudará a optimizar el desarrollo de tus proyectos en AutoCAD. Además, ofrecemos otros bloques de maquinaria pesada como excavadoras DWG, lo que permite ampliar tu biblioteca de recursos para proyectos de construcción.
Beneficios de Usar Bloques DWG de Maquinaria Caterpillar
Nuestros bloques DWG de pala cargadora no solo son gratuitos, sino que están optimizados para garantizar una integración rápida y eficiente en tus diseños. El nivel de detalle y la calidad técnica de estos bloques autocad maquinaria industrial te permitirán ahorrar tiempo en la creación de planos detallados, ya sea para proyectos de infraestructura, construcción o industria pesada.
Además, estos bloques son compatibles con cualquier versión de AutoCAD 2D, lo que los hace accesibles y fáciles de utilizar para profesionales y estudiantes por igual. Si necesitas otros recursos similares, como una excavadora DWG o más bloques DWG de maquinaria, nuestra biblioteca ofrece una amplia gama de opciones para satisfacer tus necesidades.





