
Accede a Recursos CAD para Estacionamientos Adaptados y Facilita el Diseño Inclusivo en tus Proyectos

Bloques DWG de Aparcamiento en Cordón para Turismos en AutoCAD 2D Gratis

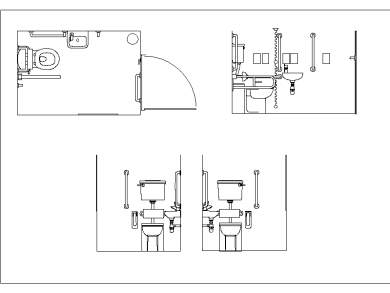
Descargar DWG baño adaptado silla ruedas planta

Bloques CAD para baños para discapacitados

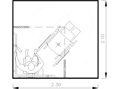
Bloques AutoCAD de Área de maniobras para sillas de ruedas

Descargar DWG ducha adaptada silla ruedas

Planos DWG de rampas accesibles: medidas y detalles técnicos
Descargar Bloques DWG de Aparcamiento Accesible para Personas con Movilidad Reducida en AutoCAD 2D Gratis
La accesibilidad es un aspecto clave en el diseño urbano actual. Contar con bloques DWG de aparcamientos accesibles es fundamental para crear espacios que garanticen el uso y disfrute de las instalaciones por parte de todas las personas, incluidas aquellas con movilidad reducida. En este artículo, te ofrecemos la oportunidad de descargar bloques DWG de aparcamientos accesibles completamente gratis.
Importancia de los Aparcamientos Accesibles
Los aparcamientos accesibles son esenciales para garantizar que las personas con movilidad reducida puedan acceder a edificios y espacios públicos de manera segura. Al implementar un diseño adecuado, no solo cumples con las normativas, sino que también contribuyes a una sociedad más inclusiva. Cada vez que añades un bloque CAD de estacionamiento en tu proyecto, estás haciendo una diferencia.
Beneficios de Usar Bloques DWG en tus Proyectos
- Facilidad de Uso: Los bloques CAD se integran fácilmente en AutoCAD, lo que te permite incorporarlos rápidamente a tus diseños sin complicaciones.
- Variedad de Opciones: Hay una amplia gama de estacionamientos públicos DWG disponibles, lo que significa que puedes elegir el que mejor se adapte a tus necesidades.
- Ahorro de Tiempo: Utilizar bloques DWG gratis puede ahorrarte horas de trabajo, permitiéndote enfocarte en otros aspectos importantes de tu diseño.
Cómo Implementar los Bloques DWG de Aparcamiento Accesible
Para usar estos bloques CAD de estacionamiento, simplemente descárgalos e impórtalos en tu proyecto de AutoCAD. Asegúrate de ajustar las dimensiones y la ubicación de los bloques según las necesidades específicas del espacio. También es importante considerar la colocación de rampas y otros elementos que faciliten el acceso.
Consejos para un Diseño Inclusivo
- Sigue las Normativas: Asegúrate de que tu diseño cumpla con las normativas de accesibilidad vigentes en tu región.
- Considera el Espacio: Deja suficiente espacio alrededor de los aparcamientos accesibles para que las personas puedan entrar y salir de sus vehículos cómodamente.
- Ubicación Estratégica: Sitúa los aparcamientos cerca de las entradas principales de los edificios para facilitar el acceso.
Conclusión
Descargar bloques DWG de aparcamiento accesible para personas con movilidad reducida es una excelente manera de mejorar la accesibilidad en tus proyectos de diseño arquitectónico. Estos recursos no solo son fáciles de usar, sino que también te ayudarán a crear espacios que sean verdaderamente inclusivos. Asegúrate de utilizar estos bloques para contribuir a un entorno más accesible y amigable para todos.