
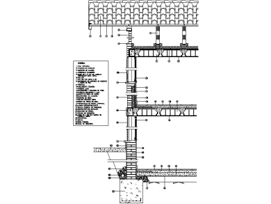
Bloques DWG Gratis de Detalles Constructivos desde Teja Cerámica a Zanja Corrida

Detalles Constructivos desde Chapa Galvanizada a Hormigón Armado

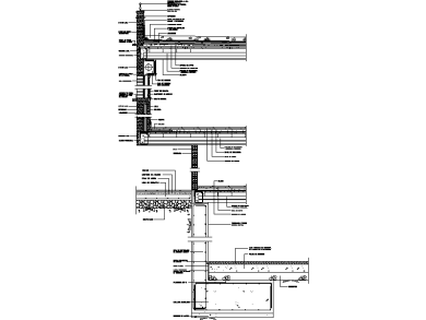
Bloques DWG Detalles Constructivos de Cubierta Plana No Transitable a Hormigón de Limpieza

Bloques DWG Detalle Constructiva desde Teja Cerámica hasta Hormigón de Limpieza

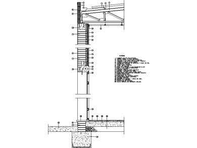
Bloques DWG Detalle de Sección Constructiva Cubierta a Cimentación

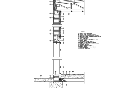
Bloques DWG Detalle de Sección Constructiva para AutoCAD 2D Gratis

Bloques DWG de Detalle de Sección Constructiva para AutoCAD 2D Gratis

Bloques DWG de Detalle Muro de Cerramiento para AutoCAD 2D Gratis
