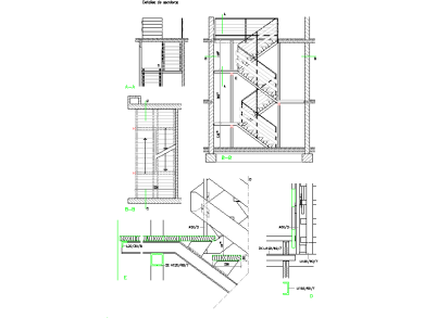
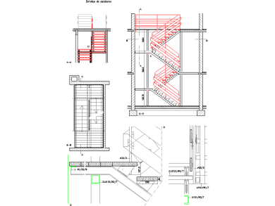
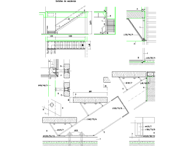
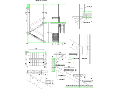
Accede a Detalles Constructivos Completos de Escaleras para Mejores Proyectos en AutoCAD 2D, ¡Totalmente Gratis!
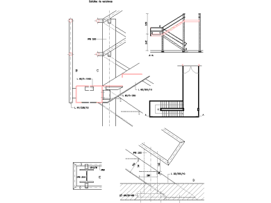
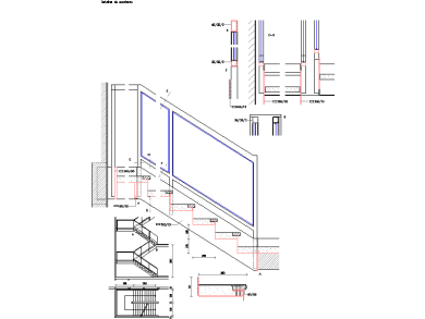
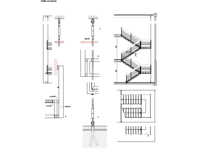
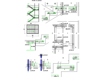
Si buscas descargar bloques DWG que desarrollen detalles varios de escaleras, estás en el lugar correcto. Nuestro sitio ofrece una colección de detalles constructivos de escaleras que incluyen plantas y secciones acotadas, ideales para su uso en AutoCAD 2D. Con estos recursos, podrás mejorar la calidad y precisión de tus proyectos arquitectónicos y de ingeniería.
¿Por Qué Son Importantes los Detalles Constructivos de Escaleras?
Los detalles constructivos son fundamentales en la elaboración de proyectos de construcción. Proporcionan una representación clara de cómo se deben construir las escaleras, incluyendo información sobre dimensiones, materiales y técnicas de montaje. Usar nuestros bloques te ofrece varios beneficios:
- Precisión y claridad: Al tener plantas y secciones acotadas, podrás visualizar y dimensionar correctamente cada parte de la escalera.
- Facilidad de integración: Los bloques están diseñados para ser fácilmente integrados en AutoCAD, permitiéndote ahorrar tiempo en tus proyectos.
- Variedad de estilos: Ofrecemos diferentes estilos de escaleras, desde las más sencillas hasta las más complejas, adaptándose a las necesidades de cada proyecto.

Bloques DWG Detalles Constructivos de Teja Cerámica a Zapata Corrida para AutoCAD 2D

Bloques DWG Gratis: Detalle de Zuncho de Borde para AutoCAD 2D

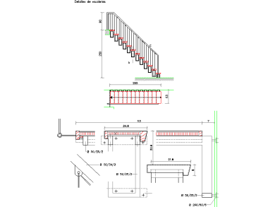
Bloques DWG de Detalles Constructivos para Diseño de Escaleras en AutoCAD 2D

Bloques DWG Gratis de Detalles Constructivos: Cubierta Plana Transitable

Bloques DWG Detalles Constructivos de Cubierta Plana No Transitable a Hormigón de Limpieza

Bloques DWG de Escalera Metálica: Estructura, Especificaciones y Fabricación en AutoCAD 2D Gratis
Ventajas de Descargar Nuestros Bloques DWG
- Acceso gratuito: Todos nuestros bloques son completamente gratuitos, permitiéndote ampliar tu biblioteca de recursos sin costos adicionales.
- Alta calidad: Nuestros detalles han sido elaborados por expertos, garantizando que cumplan con las normativas de construcción vigentes.
- Compatibilidad con AutoCAD: Cada bloque es compatible con las versiones más utilizadas de AutoCAD, lo que asegura una fácil implementación en tus diseños.
Cómo Utilizar los Detalles de Escaleras en AutoCAD
Una vez que hayas descargado los bloques DWG, sigue estos simples pasos para su uso:
- Importación de bloques: Usa la herramienta de importación en AutoCAD para añadir los bloques a tu proyecto.
- Personalización: Ajusta las dimensiones y detalles según tus requerimientos específicos.
- Colocación en el diseño: Asegúrate de que los bloques se alineen con el resto de tu proyecto y cumplan con las normativas de construcción.
Conclusión
En resumen, descargar bloques DWG de detalles de escaleras es una excelente manera de optimizar tus proyectos en AutoCAD 2D. Nuestra amplia colección de planos y secciones acotadas te permitirá realizar diseños más eficientes y profesionales. Te invitamos a explorar nuestros recursos y mejorar tus habilidades en diseño arquitectónico.



















