
Descargar apoyo viga metalica autocad dwg gratis es un bloque DWG que representa un detalle constructivo real utilizado en estructuras metálicas con forjados semirresistentes y zonas de macizado de hormigón. Este tipo de recurso suele emplearse en proyectos de edificación, naves industriales y estructuras técnicas donde se necesita documentar correctamente la unión entre vigas de acero y elementos de forjado. En la práctica, muchos delineantes y arquitectos necesitan detalles listos para insertar directamente en planos ejecutivos sin tener que dibujar conexiones desde cero.
Por eso, descargar apoyo viga metalica autocad dwg gratis permite ahorrar bastante tiempo en fases de documentación técnica, especialmente cuando se trabaja con detalles repetitivos de estructura metálica y encuentros constructivos en AutoCAD 2D. Desarrollado bajo el estándar DWG de el estándar DWG de Autodesk.
Especificaciones técnicas
| Formato | DWG (ZIP) |
| Versión AutoCAD | AutoCAD 2004+ |
| Vistas | Sección, Detalle constructivo |
| Escala | 1:1 |
| Tamaño | ~30 KB |
Características del detalle apoyo viga metalica AutoCAD 2D
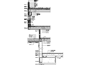
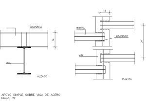
- El bloque incluye una sección técnica completa de apoyo doble sobre viga metálica con representación clara de viguetas semirresistentes, armaduras negativas y capa de compresión estructural, perfecto para descargar apoyo viga metalica autocad dwg gratis.
- Este detalle apoyo viga metalica autocad 2d muestra la relación constructiva entre el forjado y la viga principal, facilitando su integración en planos estructurales reales, útil para descargar apoyo viga metalica autocad dwg gratis en tus planos.
- La geometría del dibujo mantiene proporciones profesionales utilizadas habitualmente en proyectos de estructuras metálicas para viviendas, edificios industriales y reformas técnicas, compatible con flujos de trabajo de descargar apoyo viga metalica autocad dwg gratis.
- El archivo está organizado con líneas limpias y diferenciación gráfica adecuada para facilitar modificaciones posteriores mediante capas y configuraciones estándar de AutoCAD.
- Incluye representación de armaduras de conexión y zonas de macizado de hormigón, algo muy útil cuando se preparan detalles constructivos de ejecución estructural.
- La calidad gráfica del bloque permite utilizarlo directamente en láminas de detalle técnico sin necesidad de rehacer cotas o redefinir elementos principales del encuentro.
- El recurso resulta especialmente práctico para oficinas técnicas que trabajan frecuentemente con conexiones metálicas y documentación constructiva detallada en formato DWG.
Cómo usar el bloque en AutoCAD correctamente
- Descarga el archivo DWG y utiliza el comando INSERT para colocar el detalle estructural dentro del plano general del proyecto arquitectónico o estructural. Consulta nuestra guía completa sobre cómo insertar bloques en AutoCAD.
- Aplica el comando SCALE para ajustar la escala del detalle según el formato de impresión y la proporción utilizada en tu documentación técnica. Consulta nuestra manual de escalas en arquitectura.
- Organiza las líneas y elementos mediante LAYER para separar armaduras, hormigón, vigas metálicas y anotaciones constructivas de forma profesional.
- Usa EXPLODE únicamente si necesitas modificar partes específicas del detalle o adaptar ciertos elementos constructivos a otra configuración estructural.
- Verifica espesores de línea, sombreados y textos antes de imprimir el plano definitivo para garantizar una correcta lectura técnica del bloque estructura metalica dwg descargar.
Aplicaciones reales en proyectos estructurales
- Muy utilizado en proyectos de viviendas colectivas donde existen encuentros entre forjados unidireccionales y vigas metálicas principales de soporte estructural.
- El detalle apoyo viga metalica autocad 2d sirve como referencia rápida para generar planos ejecutivos en proyectos de rehabilitación estructural y ampliaciones.
- Se puede incorporar fácilmente en memorias gráficas de estructuras metálicas para naves industriales, talleres y edificaciones con grandes luces estructurales.
- También es útil en proyectos académicos de arquitectura e ingeniería donde se requieren detalles técnicos completos con representación realista de conexiones.
- Muchos estudios utilizan este tipo de bloque estructura metalica dwg descargar como base para adaptar soluciones constructivas según normativa y necesidades específicas.
DETALLES DE ARCHIVO CAD
- nombre: bloques-dwg-gratis-detalle-de-apoyo-doble-en-viga-metalica-para-autocad-2d
- tamaño: ~30 KB
- formato: .dwg (comprimido en .zip)
- familia: Detalles Constructivos
- descripción: descargar apoyo viga metalica autocad dwg gratis es un bloque DWG que representa un detalle constructivo real utilizado en estructuras metálicas con forjados semirresistentes y zon…
- categorías: Detalles Constructivos Detalles Estructurales
Descarga gratuita
📐 Programas gratuitos para ver y editar bloques DWG
Todas estas herramientas son gratuitas y de código abierto:
- 📐 ODA File Converter — convierte DWG/DXF entre versiones de AutoCAD
- 📐 QCAD — CAD 2D profesional, versión community gratuita
- 📐 OpenSCAD — modelado 3D por script, ideal para piezas técnicas
- 📐 DraftSight — alternativa gratuita a AutoCAD, muy similar en interfaz
- 📋 Ver todos los programas CAD →
🔧 Herramientas gratuitas para descomprimir tu archivo DWG
Todas gratuitas y sin publicidad molesta:
- 🍎 The Unarchiver — Mac, gratuito en App Store, abre todo
- 🪟 7-Zip — Windows, open source, máxima compresión
- 🌐 Zipware — Windows, fácil de usar, soporta RAR5 y 7z
- 📦 Más compresores → — todos los sistemas
📦 Más bloques DWG gratuitos para AutoCAD
Más bloques DWG para enriquecer tus planos técnicos y proyectos de arquitectura:
- 👉 Descargar Descargar forjado vigueta AutoCAD DWG Gratis – Detalle 2D
Bloque DWG gratuito para enriquecer tus planos técnicos de arquitectura e ingeniería. - 👉 Descargar Bloques DWG Detalles Constructivos de Sección Transversal Tipo
Recurso CAD en formato DWG, listo para insertar en AutoCAD sin configuración adicional. - 👉 Descargar Bloques DWG de Detalle Pilote Tipo para AutoCAD 2D
Perfecto para proyectos de diseño técnico que requieren elementos detallados en planta.
Preguntas frecuentes
Este recurso técnico resulta muy útil para arquitectos, ingenieros y delineantes que necesitan detalles constructivos listos para incorporar en planos estructurales. La ventaja de descargar apoyo viga metalica autocad dwg gratis es que permite trabajar sobre una base profesional ya organizada y preparada para modificar según cada proyecto. Además, el archivo mantiene una representación clara de las conexiones entre forjado y estructura metálica, algo que suele ahorrar bastante tiempo en la documentación técnica diaria. Si trabajas habitualmente con detalles de acero y encuentros estructurales, descargar apoyo viga metalica autocad dwg gratis puede convertirse en un recurso muy práctico dentro de tu biblioteca CAD. Explora nuestra biblioteca de bloques AutoCAD online para encontrar más recursos listos para usar. Consulta el Código Técnico para asegurarte de que tus proyectos cumplen con la normativa aplicable.
¿Te ha sido útil este recurso?
Regístrate gratis para acceder a todos los recursos CAD.








