
Obtén bloques DWG de ascensor de 1700×1800 mm y mejora tus proyectos arquitectónicos de manera sencilla

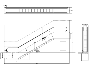
Bloques DWG escalera mecánica en planta, alzado lateral y frontal para AutoCAD 2D gratis

Bloques DWG para ascensor de doble embarque 1700 mm x 2780 mm en planta para AutoCAD 2D

Bloques DWG de ascensor 2300×2500 mm visto en planta para AutoCAD 2D gratis

Bloques DWG para ascensor de 4 personas con puertas automáticas y semiautomáticas

Bloques DWG de cabina de ascensor en vista de planta gratis para AutoCAD 2D

Bloques DWG de ascensor de 1500×1800 mm en planta para AutoCAD 2D
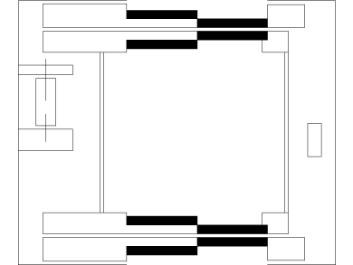
Descargar Bloques DWG Ascensor de Medidas 1700×1800 mm
Si trabajas en el ámbito de la arquitectura o el diseño, contar con los recursos adecuados es fundamental para optimizar tu trabajo. En este artículo, te enseñaremos cómo descargar bloques DWG de ascensor de medidas 1700×1800 mm, visto en planta, para AutoCAD 2D de forma gratuita.
¿Qué son los Bloques DWG?
Los bloques DWG son representaciones gráficas que facilitan el diseño de planos en AutoCAD. Usar bloques predefinidos, como los de ascensores hidráulicos o ascensores accesibles, permite que tus proyectos sean más eficientes y precisos. Este tipo de herramientas son esenciales para garantizar la calidad en el trabajo arquitectónico y simplificar el proceso de diseño.
Ventajas del Ascensor de 1700×1800 mm
El ascensor de medidas 1700×1800 mm es una solución ideal para edificios que requieren un alto flujo de personas. Su tamaño permite una capacidad adecuada, lo que ayuda a reducir los tiempos de espera y a mejorar la experiencia del usuario. Además, su diseño se adapta a una variedad de espacios, lo que lo convierte en una opción versátil para proyectos comerciales y residenciales.
Cómo Descargar los Bloques DWG
Descargar los bloques DWG es un proceso sencillo. Solo necesitas visitar nuestra plataforma de descarga y elegir el bloque que mejor se adapte a tus necesidades. Una vez descargado, puedes integrarlo rápidamente en tus proyectos de AutoCAD, ahorrando tiempo y esfuerzo en el proceso de diseño.
Otros Bloques Útiles
Además de los ascensores de 1700×1800 mm, también puedes encontrar otros bloques que enriquecerán tus proyectos, tales como:
- Escalera eléctrica: una excelente opción para conectar diferentes niveles de manera efectiva.
- Ascensor circular: ideal para dar un toque moderno y estético a tus diseños.
- Ascensor panorámico: perfecto para edificios que desean ofrecer vistas espectaculares.
Conclusión
En resumen, descargar bloques DWG de ascensor de medidas 1700×1800 mm es una herramienta valiosa que te permitirá mejorar la calidad y eficiencia de tus diseños arquitectónicos. No pierdas la oportunidad de optimizar tu trabajo con estos recursos gratuitos y fáciles de usar.