
Diseños en AutoCAD para Barbacoas y Parrillas al Aire Libre
Las parrillas y barbacoas DWG son indispensables para diseñar espacios exteriores funcionales y acogedores. Estos bloques en AutoCAD permiten incorporar barbacoas y parrillas en proyectos de jardines y terrazas de manera precisa y profesional.
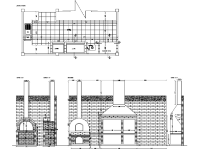
Variedad de bloques DWG de parrillas y barbacoas
Algunas opciones disponibles en los bloques AutoCAD barbacoa en planta incluyen:
- Barbacoa al aire libre con horno de barro: Un diseño rústico ideal para jardines.
- Parrilla de gas con ahumador: Perfecta para proyectos que buscan modernidad y funcionalidad.
- Barbacoa amplia con puertas inferiores: Diseños versátiles para almacenamiento y comodidad.
- Parrilla de acero inoxidable: Una opción elegante y resistente para exteriores.
Bloques DWG para personalizar jardines y terrazas
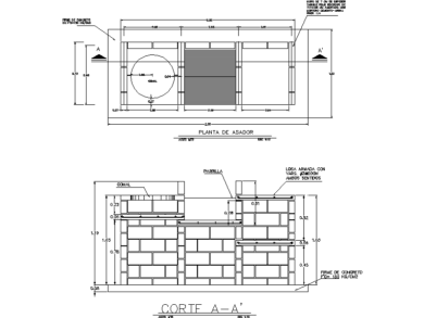
Estos bloques DWG de barbacoas de obra son ideales para representar parrillas hechas con ladrillo o materiales permanentes. Además, se pueden encontrar diseños de parrillas a gas de uno o más quemadores, lo que permite una gran variedad de opciones para proyectos personalizados.
El uso de parrillas y barbacoas DWG en proyectos arquitectónicos facilita la creación de espacios exteriores ideales para reuniones y momentos al aire libre, garantizando diseños atractivos y funcionales.














