
Bloque AutoCAD DWG: Características de accesibilidad en senderos y rampas

Bloque AutoCAD DWG: Rampa del 8% con rellano de maniobra

Bloques AutoCAD DWG de accesibilidad en pavimentos y recorridos

Bloques AutoCAD DWG de accesibilidad del baño

Bloques AutoCAD de Área de maniobras para sillas de ruedas

Descargar bloques AutoCAD DWG de figuras de persona discapacitada en movimiento

Bloques DWG CAD de medidas para personas con discapacidad

Bloque AutoCAD DWG rampa accesible con medidas estándar

Bloque AutoCAD DWG sillas salvaescaleras accesibles

Bloque AutoCAD DWG silla salvaescaleras dos tramos

Bloque AutoCAD DWG silla salvaescaleras discapacidad

Bloque AutoCAD DWG de silla salvaescaleras 2D gratis

Descargar bloque AutoCAD DWG símbolo discapacidad H 2D

Bloques AutoCAD DWG: Señales de baño hombre, mujer y unisex

Bloque AutoCAD DWG de señalización accesible para sanitarios

Bloques AutoCAD DWG gratis: carteles universales de señalización sanitaria

Descarga bloque AutoCAD DWG de ascensor adaptado en planta

Descarga bloque AutoCAD DWG de plataforma elevadora en planta para personas con discapacidad

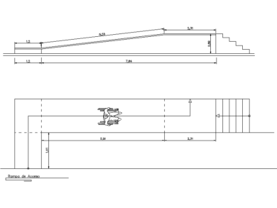
Descarga bloque AutoCAD DWG de rampa de acceso para discapacitados

Descarga bloque AutoCAD DWG de baño accesible para personas con discapacidad motriz

Descarga gratis bloque AutoCAD DWG de plataforma elevadora para silla de ruedas con radios de giro

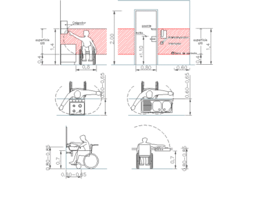
Descarga bloque AutoCAD DWG de altura de lavamanos accesible con espacio libre para rodillas

Descarga gratis proyecto de diseño de módulo sanitario en AutoCAD DWG

Descarga bloque AutoCAD DWG: dimensión mínima para cruce de dos sillas de ruedas

Descarga gratis bloque AutoCAD DWG del símbolo de accesibilidad con radios de giro

Bloques AutoCAD DWG de rampas accesibles para descargar gratis en ZIP

Descarga bloques AutoCAD de baños para discapacitados: funcionales y accesibles

Bloques AutoCAD de personas en silla de ruedas en DWG

Bloques AutoCAD de baños para discapacitados en DWG
