
Bloques DWG CAD de sillas de ruedas para proyectos accesibles

Rampa helicoidal en edificios comerciales: planos y detalles CAD

Silla elevadora para minusválidos en edificios residenciales

Rampa metálica de acceso con barandas: desarrollo estructural

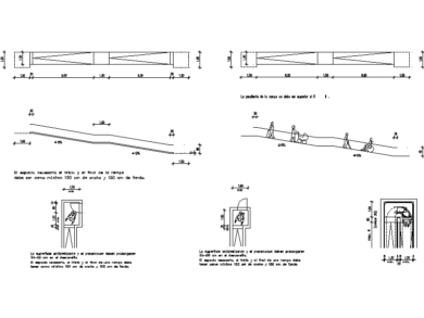
Planos 2D de rampas y escaleras: detalles técnicos DWG

Planos DWG de rampas accesibles: medidas y detalles técnicos

Normativa de rampas accesibles: medidas mínimas y pendiente

Bloque DWG transferencia silla de ruedas inodoro

Descargar DWG aseo accesible público tanque bajo

Descargar DWG perspectiva aseo accesible silla ruedas

Descargar DWG aseo accesible núcleo público planta alzado

Descargar DWG cabina accesible pública planta y alzado

Descargar DWG baño adaptado silla ruedas planta

Descargar DWG aseo DIN 18022 adaptado minusválido

Descargar DWG baño adaptado silla ruedas

Descargar DWG ducha adaptada silla ruedas

Descargar DWG inodoro accesible silla de ruedas

Descargar DWG bañera adaptada silla de ruedas planta

Descargar DWG lavabo adaptado silla de ruedas planta

Descargar bloque CAD bañera en alzado gratis

Descargar bloque CAD zona atención cliente alzado

Bloques DWG de Aparcamiento Accesible para Personas con Movilidad Reducida en AutoCAD 2D Gratis

Bloques CAD de accesibilidad siluetas de personas

Bloques CAD para baños para discapacitados

Bloques CAD de baño para personas con movilidad reducida

Bloque CAD Ascensor y Vestíbulo Adaptado

Descargar bloque CAD aseo adaptado vista lateral

Descargar bloque CAD ducha adaptada DWG

Descargar bloque CAD acceso lavabo vista lateral
