
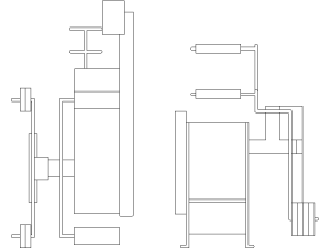
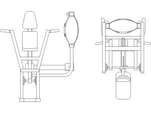
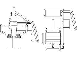
Descarga gratis el bloque CAD de Plano CAD de distribución completa de una sala de gimnasio con diferentes máquinas organizadas. en formato DWG optimizado para AutoCAD 2D. Este archivo incluye vistas detalladas y capas organizadas, compatible con AutoCAD 2004+ y BricsCAD. Perfecto para proyectos de arquitectura y diseño.
Uso y aplicaciones del bloque CAD de sala de gimnasio
El bloque CAD de distribución completa de una sala de gimnasio es esencial para diseñadores y arquitectos que buscan planificar espacios funcionales y atractivos. Con una disposición estratégica de las máquinas de ejercicio, permite visualizar el flujo del espacio, garantizando un uso eficiente. Este recurso es ideal para proyectos de diseño de interiores, remodelaciones y nueva construcción de gimnasios.
Características del archivo DWG
- Compatible con AutoCAD 2004 y versiones superiores
- Formato DWG optimizado para carga rápida
- Capas organizadas por tipo de máquina y área
- Bloques escalables sin perder definición
- Geometría limpia y optimizada para un uso profesional
- Incluye detalles como zonas de descanso y circulación
Cómo utilizar este bloque CAD en tus proyectos
Para insertar el bloque CAD en AutoCAD, primero descarga el archivo ZIP desde el enlace proporcionado. Luego, descomprímelo y abre AutoCAD. Utiliza el comando INSERT (Ctrl+Shift+I), selecciona el archivo DWG y colócalo en tu plano. Ajusta la escala según necesites para que se adapte a la medida real de tu espacio.
DETALLES DE ARCHIVO CAD
📥 Descargar Bloque CAD
ℹ️ El archivo se descargará en formato ZIP comprimido
Pasos para Descomprimir el Archivo
- Descarga el archivo ZIP haciendo clic en el botón de arriba
- Localiza el archivo en tu carpeta de descargas
- Extrae el contenido con clic derecho → "Extraer aquí" (Windows) o doble clic (Mac)
- Abre el archivo DWG con AutoCAD, BricsCAD o tu software CAD preferido
- Verifica la escala y ajusta según tus necesidades del proyecto
Herramientas de Descompresión Recomendadas
- Windows: WinRAR | 7-Zip (gratis)
- Mac: The Unarchiver (gratis) | Utilidad nativa de macOS
- Linux: PeaZip | Gestor de archivos integrado
Preguntas Frecuentes
Este archivo es compatible con AutoCAD desde la versión 2004 en adelante. También funciona en BricsCAD y otros programas que soporten formato DWG nativo. No requiere conversión ni plugins adicionales para abrirse.
Usa el comando INSERT en AutoCAD para incluir el bloque. Selecciona el archivo DWG descomprimido y colócalo en el espacio de trabajo. Asegúrate de ajustarlo a la escala deseada.
El archivo DWG incluye vistas en 2D de la distribución completa de la sala de gimnasio, con capas organizadas por tipo de elemento y geometría limpia y optimizada.
Sí, el bloque está diseñado a escala real, lo que significa que las medidas son precisas. Además, puedes editarlo fácilmente una vez que lo insertes en tu proyecto.
Este recurso es ideal para arquitectos, diseñadores de interiores y estudiantes que necesiten planificar o remodelar gimnasios. Proporciona una base sólida para proyectos de diseño profesional.
¿Te ha sido útil este recurso?
Regístrate gratis para acceder a todos los recursos CAD.








